|
首頁-水環式真空泵型號-2SY型水環式真空泵2SY型水環式真空泵
2SY型水環式真空泵產品概述:
2SY型水環式真空泵被用來抽吸空氣和其它無腐蝕性、不溶于水、不含有固體顆粒的氣體。2SY型水環式真空泵廣泛應用于石油、化工、醫藥等行業的氣體壓縮輸送、尾氣回收等。2SY型水環式真空泵具有壓力高,結構緊湊,使用可靠,操作方便以及高壓區抽速大等特點。由于在壓縮過程中是在等溫狀態下進行的,因此在壓縮易燃、易爆氣體時,不易發生危險,所以其應用更加廣泛。
2SY型水環式真空泵技術規格:
項目型號 |
抽氣量
(米3/分) |
極限壓力
(MPa) |
電機功率
(千瓦) |
泵轉速
(轉/分) |
供水量
(L/min) |
口徑 |
最大 |
壓力為0.55
MPa時的氣量 |
|
|
|
|
進 |
出 |
2SY-6 |
6 |
4.5 |
0.6 |
55 |
2870 |
100~120 |
80 |
80 |
2SY-9 |
9 |
7 |
0.6 |
90 |
1450 |
130~150 |
100 |
100 |
2SY-12 |
12 |
9.5 |
0.6 |
110 |
1450 |
160~180 |
100 |
100 |
2SY-15 |
15 |
12 |
0.6 |
160 |
1450 |
180~200 |
125 |
125 |
2SY-20 |
20 |
16 |
0.6 |
185 |
980 |
200~220 |
150 |
150 |
2SY-30 |
30 |
24 |
0.6 |
250 |
980 |
220~250 |
200 |
200 |
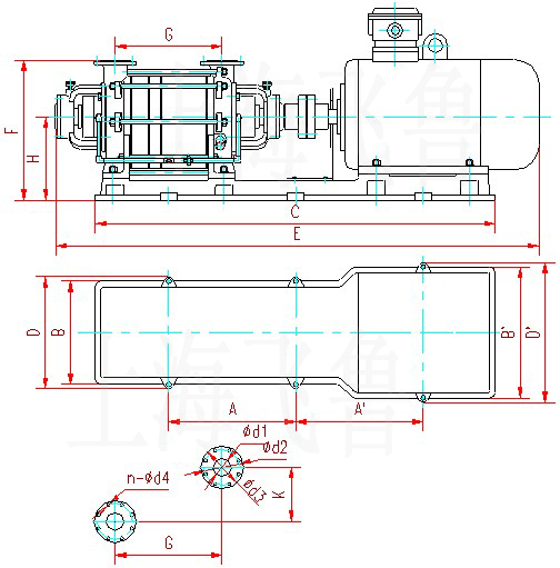
2SY型水環式真空泵安裝尺寸圖:

相關產品推薦:
2BV型水環式真空泵 2BEA型水環式真空泵 2SK型水環式真空泵 SZ型水環式真空泵
SKF型水環式真空泵 |